HOME
物件情報
お得情報
会社案内
お問い合わせ
物件をお探しの方
入居者の方
山形市小白川キャンパス周辺のアパート
山形美容専門学校・山形調理師専門学校周辺のアパート
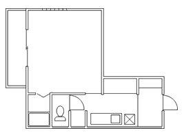
レジデンスTOMO七日町07
おすすめPOINT
市街地の真ん中。バイトに便利。近くには図書館もあります。大学までは徒歩10分。
地図を表示する
建物名
レジデンスTOMO七日町07
所在地
山形市七日町4丁目
構造
鉄筋コンクリート造 6F
タイプ
1K 8.2~9.6帖
交通
山形大学まで徒歩10分
設備
冷暖房完備 冷蔵庫・洗濯機 駐輪場
利便
市街地 市役所 図書館 近く有
家賃
39,900円~
共益費
3,000円
取引形態
貸主
敷金
2カ月
仲介料・礼金
なし
Page Top